Поиск

Структура раздела

Продаётся новая технологическая линия

Продаётся новая технологическая линия для производства путевых шурупов следующих типов:
1. Ss-25
2. Ss-35
3. ЦП 54 и др. моделей

 

Продаётся  новая технологическая линия для производства путевых шурупов ss-25, ss-35, цп-54 и других моделей.


Достоинства новой технологии:

 - высокая производительность. Темп производства составляет 4,5 секунды 1 штука.

 - низкая себестоимость шурупов. Осуществляется за счёт:

1. Использования 100% материала;

2. Экономии электроэнергии путём  применения одноразового нагрева;

3. Отсутствия операции удаления облоя.


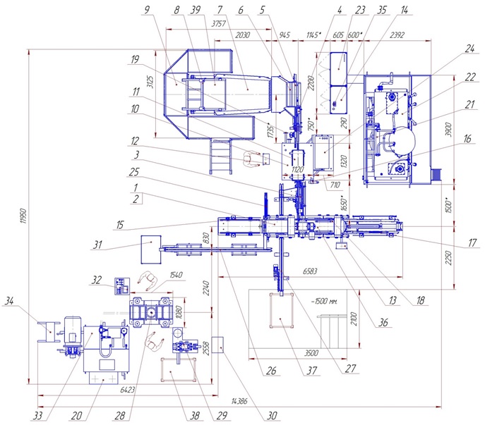
Схема расположения оборудования технологической линии по производству путевых шурупов: 

 


Технологическая линия укомплектована:

1. Стан поперечно-клиновой прокатки.

2. Клиновой инструмент.

3. Механизм загрузки стана с устройством разбраковки по температуре.

4. Механизм загрузки индуктора.

5. Цепной транспортер бункера.

6. Бункерное устройство.

7. Вибропитатель бункерного устройства.

8. Кантователь заводской тары.

9. Рабочая площадка для обслуживания кантователя и вибропитателя.

10.  Шкаф индукционного нагревателя.

11.   Индуктор для нагрева заготовок.

12.  Центральный пульт управления комплексом.

13.  Наладочный пульт управления.

14.  Электрошкаф управления комплексом.

15.  Стол для монтажа клинового инструмента в стан.

16.  Пирометр для измерения температуры нагрева заготовок перед прокаткой.

17.  Пневмопривод комплекса.

18.  Система охлаждения корпуса стана.

19.  Система охлаждения индукционного нагревателя.

20.  Система охлаждения масла гидростанции пресса.

21.  Система охлаждения масла гидростанции стана.

22.  Гидростанция стана.

23.  Силовой электрошкаф гидростанции.

24.  Преобразователь частоты – 280 кВт.

25.  Механизм выгрузки прокатанных деталей.

26.  Транспортер выгрузки прокатанных деталей.

27.  Транспортер выгрузки заготовок, бракованных по температуре.

28.  Пресс для штамповки головки шурупа.

29.  Установка для сборки шурупов с шайбой.

30.  Гидростанция установки для сборки шурупов.

31.  Стол для прокатанных деталей.

32.  Пульт управления пресса.

33.  Гидростанция пресса.

34.  Электрошкаф пресса.

35.  Сигнальная колонна с сиреной.

36.  Короба электроразводки комплекса.

37.  Тара для заготовок, бракованных по температуре (Заказчика).

38.  Тара для собранных шурупов (Заказчика).

39.  Тара для заготовок (Заказчика).

наверх